zey.sey

PROJECT

Mr. Safak Private Villa Interior Design

Mr. Safak Private Villa Interior Design

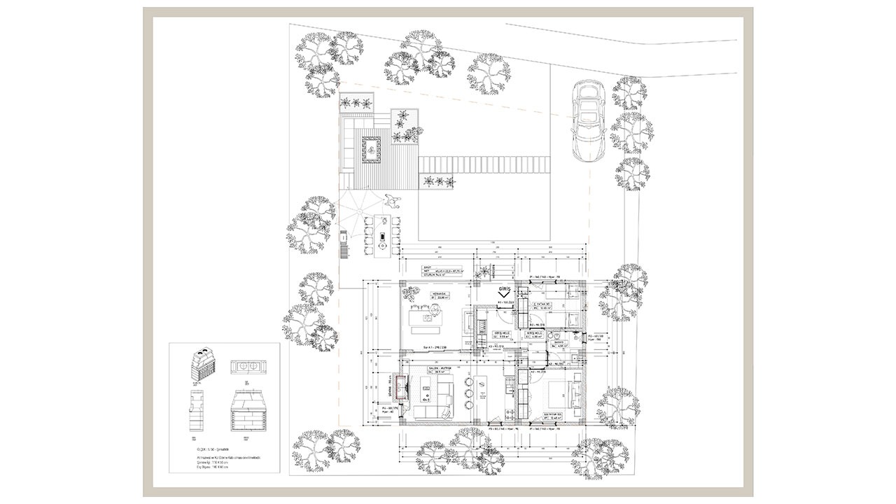
Mr. Safak's private villa, located in Golbasi, Ankara, is a full interior design and 3D visualization project realized in 2023.

Specifically, this project includes the open kitchen, living room and bedroom. The focus of the design is to create a spacious and functional space in line with the modern lifestyle. The design of the open kitchen integrated with the living room creates a social environment while taking functionality and aesthetics into consideration. The living room has been carefully arranged to offer a cozy and inviting atmosphere, while the bedroom is designed to provide a comfortable and peaceful sleeping environment.

PROJECT SCOPE :

  • Furniture Layout Plan
  • Partition and Wall Crime Plan
  • IA Plumbing Layout Plan
  • Heating and Radiator Layout Plan
  • Ceiling Plan
  • IA Electrical Plan Set
  • Wall Description Plan
  • 3D Plan Projection
  • 3D Visualization
  • Layout Plan
  • Partition and Walling Plan
  • Flooring and Skirting Plan
  • Interior Ventilation Plan
  • Interior Lighting Plan
  • Wall Material Plan
  • Custom Furniture Drawings
  • Interior Collages
  • Material Selection Lists

Building Type:

Villa and Cottage

Service:

Full Project

Online Design

Client:

Mr. Safak

Location:

Golbasi/Ankara, Turkey

Year:

2023